蜜桃国精产品二三三区视频-免费高清手机完整版
集团网站
防伪查询
产品说明书
服务热线:400-0311-836
基本安全工器具
安全工具柜
接地线
绝缘操作杆
验电器
信号发生器
核相器
辅助安全工器具
绝缘橡胶垫
绝缘手套
绝缘鞋靴
挡鼠板
绝缘梯凳
驱鸟器
防护安全工器具
安全围栏
安全帽
安全带
脚扣
速差防坠器
防电弧服
防护眼镜
安全标识系列
安全警示带
安全围栏
标志桩
标志牌
标志贴
红布幔
防汛除冰系列
防汛沙袋
防汛挡板
防洪挡板
除雪工具
除冰工具
除雪机
EN
首页
公司简介
公司简介
关于金能
品牌荣耀
企业文化
金能产品
新闻中心
客户信任
支持与服务
支持与服务
在线咨询
常见问题
电力常识
检测报告
产品说明书
联系我们
管道里程桩设计图册,管道里程桩规格尺寸
2019年11月14日
一、
管道里程桩
(电位、电流、管道穿、跨越桩通用)
1. 里程桩制作尺寸
2. 管道里程桩、加密桩底座制作尺寸(根据地质情况设置)
3. 管道里程桩标识内容
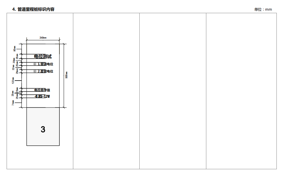
4. 管道里程桩标识内容
5. 管道里程桩标识符号(电位、电流桩)
6. 管道穿、跨越桩标识内容
7. 管道穿、跨越桩(设施)
8. 管道穿、跨越桩标识符号-1
9. 管道穿、跨越桩标识符号-2
产品推荐
绝缘橡胶垫
安全工具柜
接地线
安全帽
绝缘操作杆
绝缘手套
环保型平面/防滑/警示/印字绝缘橡胶垫(3-12mm),可定制
立即咨询
金能电力安全工具柜智能管控分类储存支持定制JN-AD
立即咨询
全新升级编织无氧铜高压接地线
立即咨询
ABS绝缘防触电安全帽国标标准质检报告支持多种配件
立即咨询
请输入正确的电话号码