输油管道线路标志牌规格尺寸,输油管道线路警示牌图集
2019年11月15日
    输油管道线路标志牌尺寸
蜜桃国精产品二三三区视频
    2. 警示柱制作尺寸
蜜桃国精产品二三三区视频
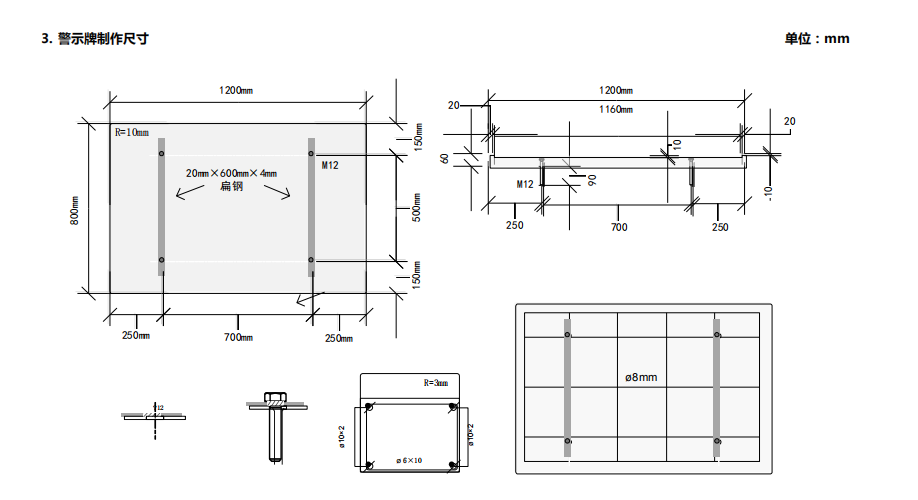
    3. 警示牌面制作尺寸
蜜桃国精产品二三三区视频
    螺杆埋件的固定方法:在扁钢钻 M12 孔,把螺杆穿过扁钢并焊牢,将扁钢与钢筋焊接成一体。
    材料及制作:C20 钢筋混凝土捣制成型,立杆埋入地下部分用混凝土固定。
    4. 警示牌标识内容
蜜桃国精产品二三三区视频
    材料:用 1160mm×760mm×5mm 玻璃钢环氧树脂制作,印制电话,另一电话根据设置地点印所属站当地电话。
    玻璃钢标语牌安装:在水泥框按标语牌孔位钻孔,放入膨胀胶管,用免钉胶均匀涂抹在水泥框内,将标语牌放入水泥框内用螺钉固定。
    5. 警示牌标识内容
蜜桃国精产品二三三区视频
    6. 警示牌安装
蜜桃国精产品二三三区视频
    临时警示牌制作尺寸 单位:mm
    1. 用于管道、水保维修和第三方施工期长的区域
蜜桃国精产品二三三区视频
    临时警示牌制作尺寸 单位:mm
    2. 用于管位检测、抢险或短时间施工临时标注管道位置
蜜桃国精产品二三三区视频
    内河助航标志警示牌制作尺寸 单位:mm
     助航警示标志辅助警示标语
蜜桃国精产品二三三区视频
 

产品推荐
请输入正确的电话号码